Smart Design. Strong Structures.
From concept to completion, we deliver strong, safe, and code-compliant structures that last. Whether it's residential, commercial, or industrial—our engineering team turns your vision into a buildable plan, on time and on budget.
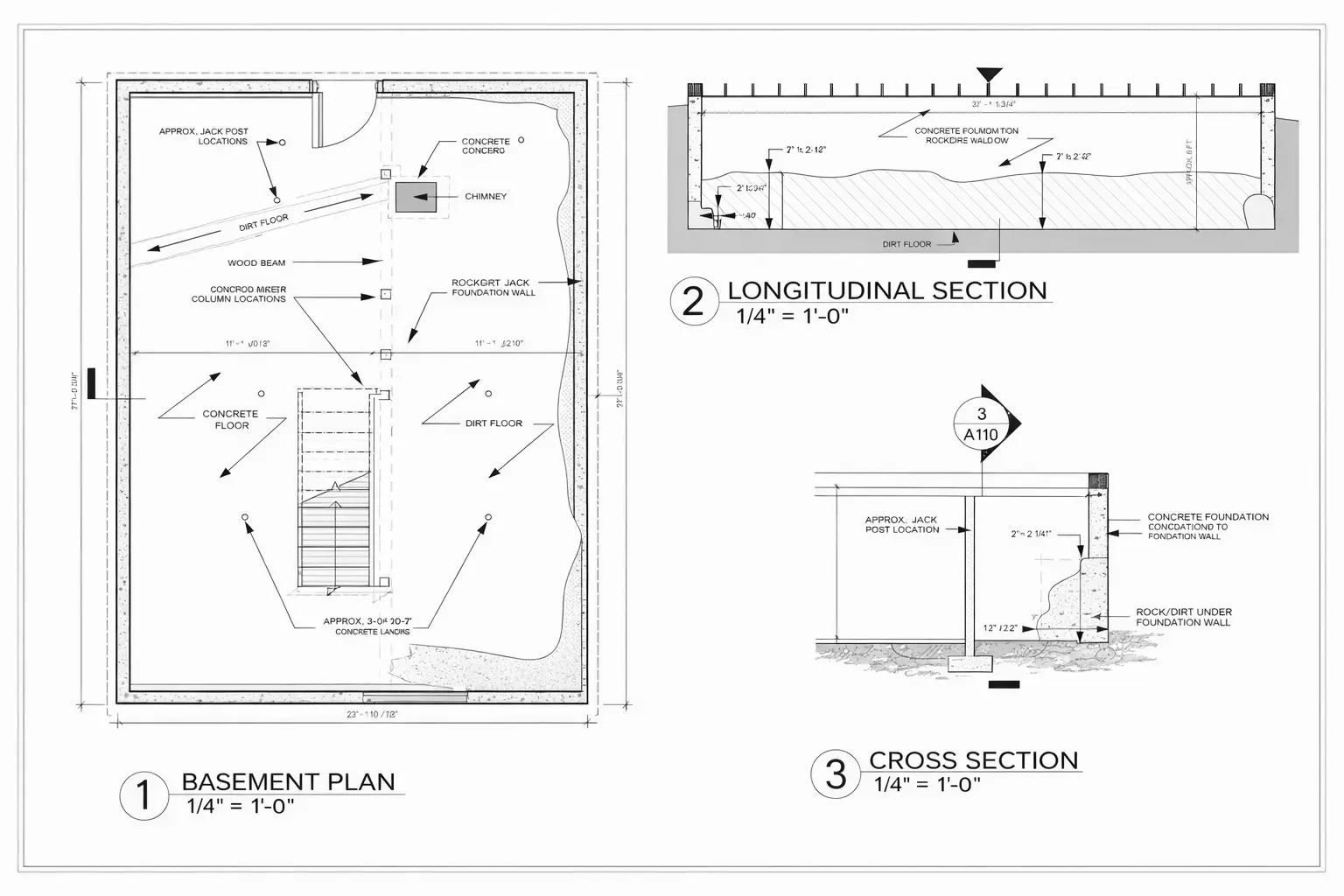
✅ Stamped drawings • Site inspections • Structural design
Building Excellence
We deliver structural engineering and construction support you can trust—designed for safety, durability, and full code compliance. From new builds to renovations, we turn ideas into clear plans that contractors can build without delays or costly surprises.
Our team provides stamped engineering drawings, site inspections, field reports, and practical solutions for concrete, steel, and timber structures. Expect fast response times, transparent communication, and work that's done right the first time.
10+
Years Experience
100+
Projects Completed
100%
Client Satisfaction
Services
Permit-ready drawings, inspections, and structural solutions—delivered fast and code-compliant.
Steel Shop Drawings
Fabrication-ready shop drawings with clear details to support smooth installation and reduce site rework
Stamped Engineering Drawings
Permit-ready, code-compliant structural drawings for new builds, renovations, and additions
Engineering Letters & Field Reports
Clear, professional site documentation for inspections, compliance, and project records.
Concrete, Steel & Timber Structures
Practical structural design solutions tailored to your project materials and site conditions
Ready to Start Your Building Project?
Send RequestAbout Us
Structural engineering and construction support built on safety, clarity, and code compliance.
Code-Compliant
Permit-ready deliverables aligned with local requirements.
Fast Turnaround
Clear timelines and quick response to keep projects moving.
Built to Last
Practical, durable solutions that reduce rework and risk.
Request Your Free Quote
Get started with your next construction project today